Köszöntünk a Mátyás Szennyvíztechnológiánál: webshop, tervezés, kivitelezés, üzemeltetés

Mátyás Szennyvíztechnológia

Kérdésed van? +36 70 677 8819

Kategóriák
Mátyás Szennyvíztechnológia

Kérdésed van? +36 70 677 8819

  • Kategóriák
    • Akciók
    • Szennyvíztisztító berendezések 138
    • Földalatti tartályok 260
    • Földfeletti tartályok 175
    • Gázolaj tartályok 15
    • Oldómedencék 107
    • Szivattyúk 80
    • Átemelő aknák 95
    • Szikkasztók 10
    • Alkatrészek, tartozékok 243
    • Csövek és idomok 0
    • Üzemanyag- és olajleválasztók 50
    • Zsírfogók 42
    • Zöldterületi burkolatok 2
    • Építkezési eszközök  25
    • Vegyszertároló tartályok 12
    • Szolgáltatási díjak 1
  • Videók
  • Szolgáltatásaink
  • Rendelési információk
    • Általános Szerződéses Feltételek
    • Adatkezelési tájékoztató
    • Cookie tájékoztató
    • Szállítási módok
    • Fizetési módok
    • Képes vásárlói tájékoztató
  • Blog
  • Kapcsolat
Levélszűrő akna
Levélszűrő akna
86 100 Ft
  1. Szűrők
  1. Alkatrészek, tartozékok
  2. Szűrők

Levélszűrő akna

Cikkszám: 
FAPI
Levélszűrő akna
Levélszűrő akna
Levélszűrő akna
Levélszűrő akna
Levélszűrő akna
Levélszűrő akna
Levélszűrő akna
Levélszűrő akna
86 100 Ft
Anyagminőség:
Polietilén - LLDPE


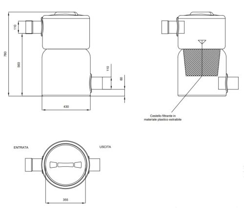
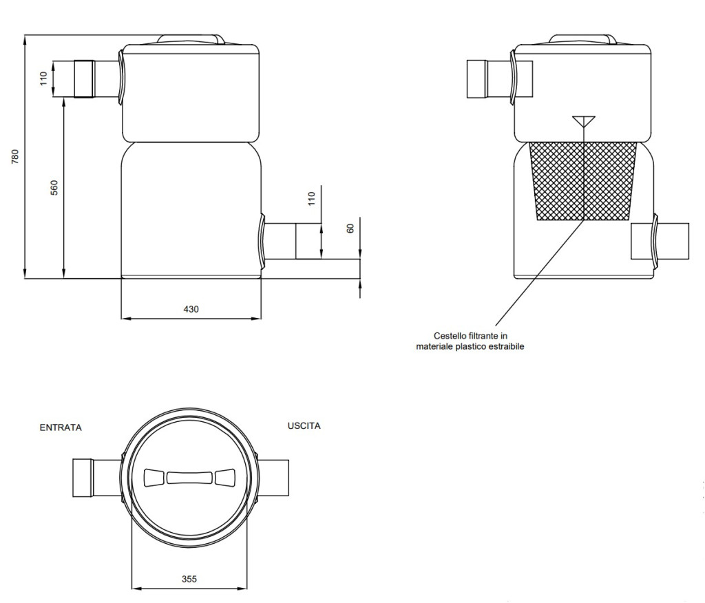
A levélszűrő akna egy olyan szűrőegység, amely a csapadékvíz‑gyűjtő rendszerekben automatikusan eltávolítja a leveleket, ágakat és egyéb nagyobb szilárd szennyeződéseket. Megakadályozza, hogy ezek a részecskék a további csőhálózatba vagy vízkezelő rendszerbe jussanak, így növelve a rendszer hatékonyságát és élettartamát.

Részletek

Levélszűrő akna – szilárd levél‑ és törmelékszűrés csapadékvíz‑gyűjtő rendszerekhez




A levélszűrő akna egy olyan előszűrő egység, amelyet csapadékvíz‑gyűjtő és vízelvezető rendszerekbe helyeznek be, hogy a csapadékvízzel érkező leveleket, ágakat, kéregdarabokat és egyéb nagyobb szilárd szennyeződéseket automatikusan kiszűrje. Ez a megoldás csökkenti a csőhálózat, a szivattyúk és a vízkezelő berendezések eltömődésének kockázatát, és biztosítja a rendszer folyamatos, zavartalan működését.



Főbb jellemzők




  • Automatikus levélszűrés: a rendszer mechanikusan eltávolítja a nagyobb szilárd részecskéket, például leveleket, ágakat és egyéb törmelékeket.

  • Egyszerű karbantartás: a szűrőbetét vagy rekesz könnyen hozzáférhető, tisztítható vagy cserélhető.

  • Csőhálózat védelme: megakadályozza, hogy közvetlenül a csővezetékbe és az utólagos kezelőegységekbe kerüljenek nagyobb törmelékek.

  • Kompatibilis különböző rendszerekkel: használható csapadékvíz‑gyűjtőkben, elvezető hálózatokban és előtisztító egységek előtt.



Alkalmazási területek




  • Csapadékvíz‑gyűjtő és újrahasznosító rendszerek

  • Kert‑ és udvari elvezető rendszerek

  • Átemelő és elosztó aknák előtti mechanikai szűrés

  • Parkolók, utak és burkolt felületek csapadékvíz‑kezelése



Műszaki előnyök




  • Hatékony szilárdanyag‑eltávolítás: csökkenti a csőhálózat eltömődésének esélyét és védi a tovább‑kezelő egységeket.

  • Egyszerű kezelés és karbantartás: a levélszűrő szerkezete könnyen hozzáférhető, így a szennyeződések eltávolítása gyorsan elvégezhető.

  • Integrálható meglévő rendszerekbe: flexibilis telepítési lehetőségeket biztosít különböző csapadékvíz‑kezelő hálózatokban.



Használati előnyök




A levélszűrő akna hosszabb távon csökkenti az üzemeltetési költségeket azáltal, hogy kevesebb karbantartást és kisebb szűrő‑ vagy szivattyúcserét igényel a rendszerben. Növeli a csapadékvíz‑kezelő rendszer teljesítményét és megbízhatóságát, mivel a nagyobb szilárd szennyeződéseket már az elsődleges szakaszban kiszűri.




Ez a megoldás ideális minden olyan helyszínhez, ahol sok szerves törmelék – például levelek, ágak – érkezhet a csapadékvízzel, és szükséges a csőhálózat és a további berendezések védelme.

Adatok
Gyártó :
Rototec
Csatlakozó mérete:
D110/110
Gyártói garancia:
2 év
Zárható:
Igen
Telepítési mód:
Földalatti
Vezérlés:
nincs
Vásárlói fiók
  • Belépés
  • Regisztráció
  • Profilom
  • Kosár
  • Kedvenceim
Információk
  • Általános szerződési feltételek
  • Adatkezelési tájékoztató
  • Fizetés
  • Szállítás
  • Elérhetőségek
Grand Union Kft
  • 2475 Kápolnásnyék, Kutas sor 47
  • +36706778819
  • info@matyastech.hu
  • facebook

  • pinterest

  • instagram

Iratkozz fel hírlevelünkre!

Vár rád az
5% nyitási kedvezmény!

Add meg az email címed és zsebeld be az 5% nyitási kedvezményre jogosító kupont, amelyet bármely általad választott termékünkre felhasználhatsz!

Feliratkozás
stripe_com
  • Akciók
  • Szennyvíztisztító berendezések 138
  • Földalatti tartályok 260
  • Földfeletti tartályok 175
  • Gázolaj tartályok 15
  • Oldómedencék 107
  • Szivattyúk 80
  • Átemelő aknák 95
  • Szikkasztók 10
  • Alkatrészek, tartozékok 243
  • Csövek és idomok 0
  • Üzemanyag- és olajleválasztók 50
  • Zsírfogók 42
  • Zöldterületi burkolatok 2
  • Építkezési eszközök  25
  • Vegyszertároló tartályok 12
  • Szolgáltatási díjak 1
  • Videók
  • Szolgáltatásaink
  • Rendelési információk
    Rendelési információk
    • Általános Szerződéses Feltételek
    • Adatkezelési tájékoztató
    • Cookie tájékoztató
    • Szállítási módok
    • Fizetési módok
    • Képes vásárlói tájékoztató
  • Blog
  • Kapcsolat
Belépés
Regisztráció
Adatkezelési beállítások
Weboldalunk az alapvető működéshez szükséges cookie-kat használ. Szélesebb körű funkcionalitáshoz (marketing, statisztika, személyre szabás) egyéb cookie-kat engedélyezhet. Részletesebb információkat az Adatkezelési tájékoztatóban talál.
A működéshez szükséges cookie-k döntő fontosságúak a weboldal alapvető funkciói szempontjából, és a weboldal ezek nélkül nem fog megfelelően működni. Ezek a sütik nem tárolnak személyazonosításra alkalmas adatokat.
A marketing cookie-kat a látogatók weboldal-tevékenységének nyomon követésére használjuk. A cél az, hogy releváns hirdetéseket tegyünk közzé az egyéni felhasználók számára (pl. Google Ads, Facebook Ads), valamint aktivitásra buzdítsuk őket, ez pedig még értékesebbé teszi weboldalunkat.
Az adatok névtelen formában való gyűjtésén és jelentésén keresztül a statisztikai cookie-k segítenek a weboldal tulajdonosának abban, hogy megértse, hogyan lépnek interakcióba a látogatók a weboldallal.
A személyre szabáshoz használt cookie-k segítségével olyan információkat tudunk megjegyezni, amelyek megváltoztatják a weboldal magatartását, illetve kinézetét.